เครนโครงสำหรับตั้งสิ่งของ 20 ตัน

I. ภาพรวม
เครนโครงสำหรับตั้งสิ่งของคานเดี่ยวรูปตัว L เป็นอุปกรณ์ยกชนิดหนึ่ง รองรับกลไกการยกและขอเกี่ยวด้วยคานพาดผ่านพื้นที่ทำงาน และมีรูปร่างเหมือนตัว "L" โครงสร้างนี้ช่วยให้เครนมีช่วงการทำงานที่ใหญ่ขึ้นและมีความสูงในการทำงานสูงขึ้น มีความสามารถในการจัดการวัสดุที่มีประสิทธิภาพซึ่งช่วยเพิ่มประสิทธิภาพในการทำงานและผลผลิต รับประกันประสิทธิภาพด้านความปลอดภัยและติดตั้งอุปกรณ์ความปลอดภัยต่างๆ เช่น ระบบป้องกันการโอเวอร์โหลด ปุ่มหยุดฉุกเฉิน และลิมิตสวิตช์ เครนคานเดี่ยวรูปตัว L ถูกนำมาใช้กันอย่างแพร่หลายในการผลิต คลังสินค้าและโลจิสติกส์ สถานที่ก่อสร้าง และสาขาอื่นๆ โดยมอบโซลูชันการยกที่มีประสิทธิภาพและปลอดภัยสำหรับทุกสาขาอาชีพ
ครั้งที่สอง ข้อดีของผลิตภัณฑ์
1. โครงสร้างที่เป็นเอกลักษณ์: เครนคานเดี่ยวรูปตัว L ใช้โครงสร้างรูปตัว L พิเศษ โดยมีลำแสงและเสาทำมุม 90 องศา โครงสร้างนี้ช่วยให้เครนครอบคลุมพื้นที่ทำงานที่กว้างขึ้นและปรับให้เข้ากับความต้องการของไซต์ที่มีขนาดและเค้าโครงต่างกันได้
2. ความยืดหยุ่นและความสามารถในการปรับตัว: เครนโครงสำหรับตั้งสิ่งของคานเดี่ยวรูปตัว L สามารถปรับแต่งได้ตามความต้องการเฉพาะของลูกค้า รวมถึงการปรับความสามารถในการยก ช่วง ความสูงในการยก และพารามิเตอร์อื่น ๆ ช่วยให้เครนสามารถปรับตัวเข้ากับสถานการณ์การทำงานและข้อกำหนดในการขนถ่ายวัสดุที่แตกต่างกันได้
3. ความสามารถในการขนถ่ายวัสดุที่มีประสิทธิภาพ: เครนโครงสำหรับตั้งสิ่งของคานเดี่ยวรูปตัว L มีความสามารถในการขนถ่ายวัสดุที่มีประสิทธิภาพ ซึ่งสามารถปรับปรุงประสิทธิภาพการทำงานและผลผลิตได้ เหมาะสำหรับการยก การขนย้าย และการวางตำแหน่งวัสดุต่างๆ
4. ประสิทธิภาพด้านความปลอดภัย: เครนคานเดี่ยวรูปตัว L ติดตั้งอุปกรณ์ความปลอดภัยหลากหลาย เช่น ระบบป้องกันการโอเวอร์โหลด ปุ่มหยุดฉุกเฉิน และลิมิตสวิตช์ เพื่อให้มั่นใจในความปลอดภัยในการทำงานและความปลอดภัยของบุคลากร
สาม. เอกสารทางเทคนิค

|
ความจุ/ตัน
|
3
|
5
|
10
|
16
|
20
|
||
|
ช่วง/ม
|
12/16/24/30
|
||||||
|
วิธีการดำเนินงาน
|
สายห้อยพร้อมปุ่มกด/ห้องโดยสาร/รีโมท
|
||||||
|
ความเร็ว |
ยก ม./นาที
|
8,8/0.8
|
8,8/0.8
|
7,7/0.7
|
3.5
|
3.5
|
|
|
เดินทางข้าม
|
20
|
20
|
20
|
20
|
20
|
||
|
การเดินทางที่ยาวนาน
|
พื้น
|
20
|
20
|
20
|
20
|
20
|
|
|
เคเบิล
|
20,30,45
|
20,30,40
|
20,30
|
20,30
|
20,30
|
||
|
รอกไฟฟ้า
|
ซีดี1/MD1
|
ซีดี1/MD1
|
ซีดี1/MD1
|
ซีดี1
|
HC
|
||
|
ระยะยกสูง/ม
|
6/9/12/18/24/30
|
||||||
|
หน้าที่การทำงาน
|
A3
|
||||||
|
แหล่งจ่ายไฟ
|
380V 50Hz 3PH เอซี
|
||||||
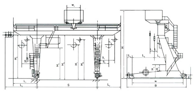
IV. รายละเอียดชิ้นส่วนเครน

V. การสมัคร


เกี่ยวกับ คีนันเครน


ป้ายกำกับยอดนิยม: เครนโครงสำหรับตั้งสิ่งของ 20 ตัน ประเทศจีนผู้ผลิตเครนโครงสำหรับตั้งสิ่งของ 20 ตัน ซัพพลายเออร์ โรงงาน
คุณอาจชอบ
ส่งคำถาม












